| |
Garden Web Kitchen Design
Grow fresh and organic vegetables in your balcony by setting up your kitchen garden.
Garden web kitchen design. This forum is for the discussion of issues related to home decorating and interior design like how to tastefully incorporate the wonderful antique commode you inherited from aunt martha into your thrift store decor without it looking totally declassé. Please help decide position of hob fridge and sink. Kitchens furniture home decorating.
Professionals design architects building designers kitchen bathroom designers interior designers decorators design build firms lighting designers suppliers remodeling kitchen bathroom remodelers general contractors home builders tile countertop contractors masonry concrete contractors exterior siding contractors stair railing. Kitchen design plans modern interior design picture. L shaped kitchen layout.
Lacquered glass or acrylic sheet. Professionals design architects building designers kitchen bathroom designers interior designers decorators design build firms lighting designers suppliers remodeling kitchen bathroom remodelers general contractors home builders tile countertop contractors masonry concrete contractors exterior siding contractors stair railing. Posted by tibrewal s interio 4 january 2021.
20 l shaped kitchen design ideas to inspire you remodeled l shaped kitchen. Services painters roofing gutter contractors organizers closet designers home stagers garage door services window treatment services paint wall covering dealers appliances systems appliance sales services hvac contractors home theater automation outdoor lighting av specialists solar energy contractors. Posted by archana murthy 3 days ago.
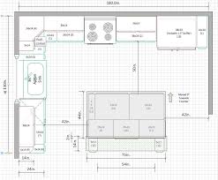
Posted by juliet january 14 2021. Small kitchen layout help kitchens forum gardenweb rubinstein kitchen 1 modern kitchen. Elegance kitchen lay outs with island dining elegance kitchen lay outs with.
Be the first to comment. Renovation plans help. 4 comments updated 2 days ago 2.
Source : pinterest.com

